Beschreibung
Diese Villa ermöglicht Ihnen ein luxuriöses Leben in Istrien. Als Vermietungsobjekt ist eine hohe Rendite gegeben. Modernes Design, phänomenaler Meerblick und die einzigartige Lage, in einer kleinen Sackgasse mit nur 2 weiteren Häusern, garantiert Privatsphäre und Ruhe. Die Villa steht nur wenige Kilometer von Labin entfernt.
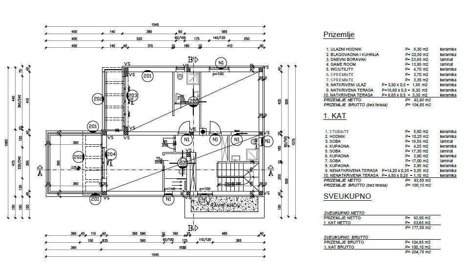
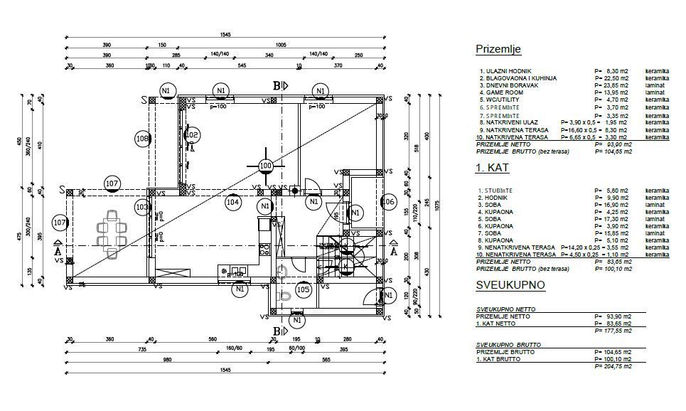
Dieses großzügige Objekt mit einer Wohnfläche von 205m² mit Swimmingpool und Liegewiese, Parkplätzen und angelegter Gartenfläche von 1415m2 bieten absolute Ruhe abseits der Hektik der kleinen Stadt.
Da sich die Villa im Rohbau befindet, haben Sie noch die Möglichkeit auf die Ausstattung und Gestaltung Einfluss zu nehmen.
Hinweis: Die kroatische MwSt. in Höhe von 25% ist bei diesem Objekt ausweisbar. Daher bietet sich, z.B. eine Firmengründung in Kroatien an. Hierbei unterstützen wir Sie gerne.
Raumaufteilung
Die Villa erstreckt sich über 2 Etagen. Im Erdgeschoss gibt es einen Eingangsbereich, Küche, Esszimmer, Wohnzimmer, Toilette, Abstellräume, ein Spielzimmer und eine großzügige überdachte Terrasse mit geplanter Außenküche. Die Innentreppe führt in den 1. Stock, wo sich ein Flur, 3 Schlafzimmer mit eigenem Bad und 2 schöne Terrassen mit einem zauberhaften Blick auf das Meer befinden.

Sie haben Interesse an dieser Immobilie?
Ihr Ansprechpartner: Claus Nückel-Kessler
Drenje, 52220 Raša, Hrvatska
Drenje ist ein kleines Wohngebiet unweit von Labin. Labin, die kleine Stadt, bietet neben einer traumhaften Altstadt hoch oben über der Adria einen modernen Teil mit allen Einrichtungen. Das angenehme, mediterrane Klima und dem reichen gastronomischen Angebot sowie zahlreichen Aktivitäten und Erlebnisse in unmittelbarer Nähe ein wunderbarer Ort zum Leben. Der Strand ist nur 3000m entfernt und sehr gut zu erreichen. Der Badehotspot Rabac liegt unterhalb von Labin am Fuße der Hochebene.
Wir bieten Ihnen die gesamte Betreuung aus und in Deutschland bis zur Schlüsselübergabe. Besichtigungen können ebenso über unsere Partner in Kroatien erfolgen. Die Kommunikation zu Verkäufern, Partnern, Notaren und allen weiteren Personen läuft über unser deutsches Büro. Wir begleiten Sie in enger Abstimmung bei einem Privatkauf Ihrer Immobilie oder unterstützen Sie tatkräftig bei einem gewerblichen Kauf. Bei Steuersparmodellen wie z.B. einer Firmengründung, einer Kroatischen d.o.o. (kroatische GmbH) werden Sie durch uns und unserem Rechtsanwalt, Notar und einen Fiskalvertreter (Steuerberater) engmaschig begleitet, auch zu behördlichen Institutionen. Wir sprechen die Landessprache und kennen die örtlichen Gepflogenheiten. Bei Abschluss eines notariellen Kaufvertrages erheben wir eine Provision von 5,9 % inklusive der gesetzlichen Mehrwertsteuer bezogen auf den Kaufpreis. Für Ihr individuelles Bauprojekt berechnen wir unsere Leistung nach einem Projektplan entsprechend Ihrer Bedürfnisse.









