Beschreibung
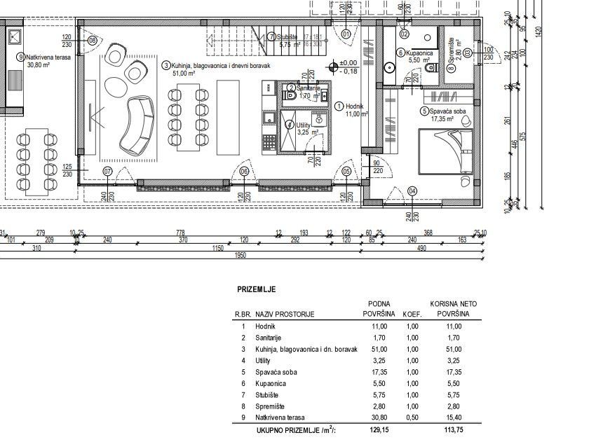
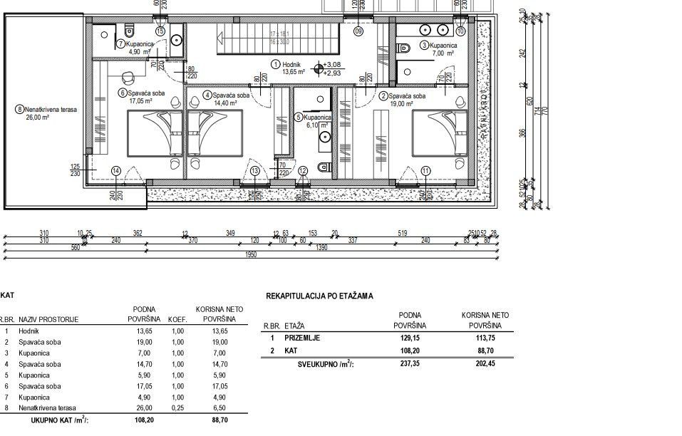
Modernes zweistöckiges Haus mit Pool in einem schönen Ort mit super Infrastruktur. Die gesamte Nettonutzfläche des Hauses beträgt 200 m2 und es befindet sich auf einem 1263 m² großen Grundstück. Das Erdgeschoss besteht aus Flur, Toilette, einem geräumigen Wohnzimmer mit Küche und Essbereich, einem Schlafzimmer mit Bad, Abstellraum und zwei überdachten Terrassen. Im ersten Stock befinden sich drei Schlafzimmer, jedes mit eigenem Bad, Flur und Terrasse. Im Garten wird es einen 32 qm großen Pool geben.
Ein schlüsselfertiges Projekt mit fertiggestellter Außenanlage und Pool. Möbel und Lampen sind nicht im Preis eingeschlossen.
Der Baubeginn ist für 09/2022 und die Fertigstellung für 09/2023 geplant.
Die Immobilie befindet sich im Mehrwertsteuersystem, und die Mehrwertsteuer ist Teil des angegebenen Verkaufspreises.

Sie haben Interesse an dieser Immobilie?
Ihr Ansprechpartner: Claus Nückel-Kessler
52440 Poreč, Hrvatska
Die Stadt Porec liegt im Nordwesten der Region Istrien und wurde aufgrund ihres hervorragenden und vielseitigen Tourismusangebotes bereits mehrfach ausgezeichnet. Entdecken Sie die kulturellen Sehenswürdigkeiten von Porec, wie z.B. die Euphrasia Basilika (UNESCO Weltkulturerbe) und lassen sich vom Flair der Stadt verzaubern. Den Tag lässt man nach einem Restaurantbesuch dann am Besten auf einer der vielen kulturellen Veranstaltungen ausklingen.
Wir bieten Ihnen die gesamte Betreuung aus und in Deutschland bis zur Schlüsselübergabe. Besichtigungen können ebenso über unsere Partner in Kroatien erfolgen. Die Kommunikation zu Verkäufern, Partnern, Notaren und allen weiteren Personen läuft über unser deutsches Büro. Wir begleiten Sie in enger Abstimmung bei einem Privatkauf Ihrer Immobilie oder unterstützen Sie tatkräftig bei einem gewerblichen Kauf. Bei Steuersparmodellen wie z.B. einer Firmengründung, einer Kroatischen d.o.o. (kroatische GmbH) werden Sie durch uns und unserem Rechtsanwalt, Notar und einen Fiskalvertreter (Steuerberater) engmaschig begleitet, auch zu behördlichen Institutionen. Wir sprechen die Landessprache und kennen die örtlichen Gepflogenheiten. Bei Abschluss eines notariellen Kaufvertrages erheben wir eine Provision von 5,9 % inklusive der gesetzlichen Mehrwertsteuer bezogen auf den Kaufpreis. Für Ihr individuelles Bauprojekt berechnen wir unsere Leistung nach einem Projektplan entsprechend Ihrer Bedürfnisse.

























