Beschreibung
- Immobilientyp: freistehendes Steinhaus mit Pool
- Wohnfläche: 250 m²
- Anzahl Schlafzimmer: 4
- Anzahl Badezimmer: 4 + 1WC
- Größe Pool: 49 m²
- Größe des Grundstücks: 1.020 m²
- Objektzustand: Neubau
Wunderschöne moderne Villa mit Meerblick in einzigartiger Lage, in einem Ort mit der gesamten notwendigen Infrastruktur, 12 km von Poreč entfernt.
Zum Meer sind es 8000 m.
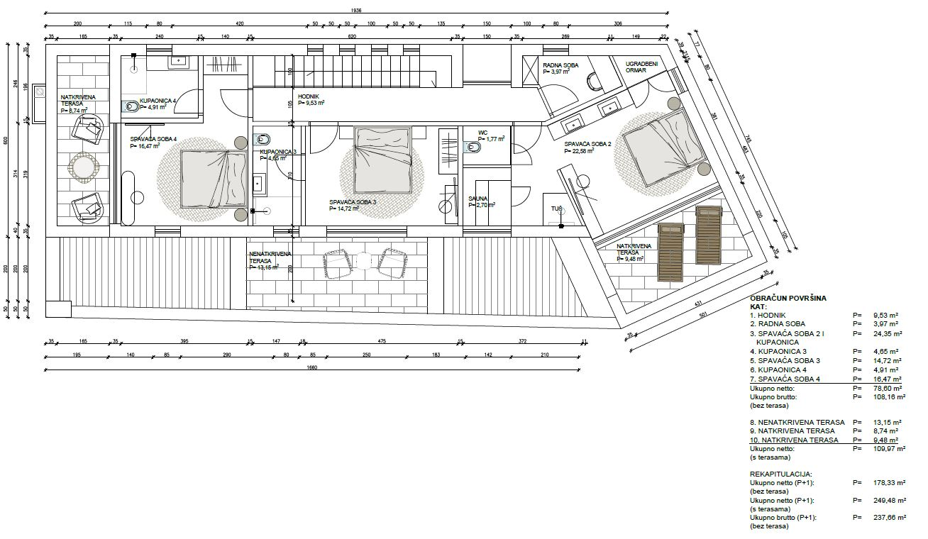
Im Erdgeschoss wird es Flur, Toilette, Waschküche, Heizungsraum, Wohnzimmer mit Küche und Esszimmer, ein Schlafzimmer, ein Badezimmer und eine überdachte Terrasse geben. Im ersten Stock befinden sich der Flur, ein Arbeitszimmer, drei Schlafzimmer und drei Badezimmer. Eine überdachte und eine nicht überdachte Terrasse runden das Angebot ab. Die Villa wird mit elektrischer Fußbodenheizung sowie mit Klimaanlagen ausgestattet. Auf dem Grundstück wird es einen 49 qm großen Pool geben. Zum Haus gehören 3 eigene Parkplätze.
Die Immobilie befindet sich im Mehrwertsteuersystem und die Mehrwertsteuer ist Teil des angegebenen Verkaufspreises.

Sie haben Interesse an dieser Immobilie?
Ihr Ansprechpartner: Claus Nückel-Kessler
52440 Poreč, Hrvatska
Die Stadt Porec liegt im Nordwesten der Region Istrien und wurde aufgrund ihres hervorragenden und vielseitigen Tourismusangebotes bereits mehrfach ausgezeichnet. Entdecken Sie die kulturellen Sehenswürdigkeiten von Porec, wie z.B. die Euphrasia Basilika (UNESCO Weltkulturerbe) und lassen sich vom Flair der Stadt verzaubern. Den Tag lässt man nach einem Restaurantbesuch dann am Besten auf einer der vielen kulturellen Veranstaltungen ausklingen.
Wir bieten Ihnen die gesamte Betreuung aus und in Deutschland bis zur Schlüsselübergabe. Besichtigungen können ebenso über unsere Partner in Kroatien erfolgen. Die Kommunikation zu Verkäufern, Partnern, Notaren und allen weiteren Personen läuft über unser deutsches Büro. Wir begleiten Sie in enger Abstimmung bei einem Privatkauf Ihrer Immobilie oder unterstützen Sie tatkräftig bei einem gewerblichen Kauf. Bei Steuersparmodellen wie z.B. einer Firmengründung, einer Kroatischen d.o.o. (kroatische GmbH) werden Sie durch uns und unserem Rechtsanwalt, Notar und einen Fiskalvertreter (Steuerberater) engmaschig begleitet, auch zu behördlichen Institutionen. Wir sprechen die Landessprache und kennen die örtlichen Gepflogenheiten. Bei Abschluss eines notariellen Kaufvertrages erheben wir eine Provision von 5,9 % inklusive der gesetzlichen Mehrwertsteuer bezogen auf den Kaufpreis. Für Ihr individuelles Bauprojekt berechnen wir unsere Leistung nach einem Projektplan entsprechend Ihrer Bedürfnisse.






